当前位置: 首页 >热门音乐 >【方案】太空仓主题的科幻风格,声业地视听构建-福建美洛笛克电子科技私人影院案例

【方案】太空仓主题的科幻风格,声业地视听构建-福建美洛笛克电子科技私人影院案例

2020-11-22 19:27:00

编者按

该视听室以太空仓主题的设计风格来打造,看起来很前卫,充满了科幻感。为了达到更好地声学构建,无论是声学模块地处理,还是隔音材料地选择,都做了相当缜密和专业的安排,以期在有限的条件下做到最突出的视听效果。


基本情况介绍


地理位置:福州仓山红星美凯龙

整体资金投入:80万元

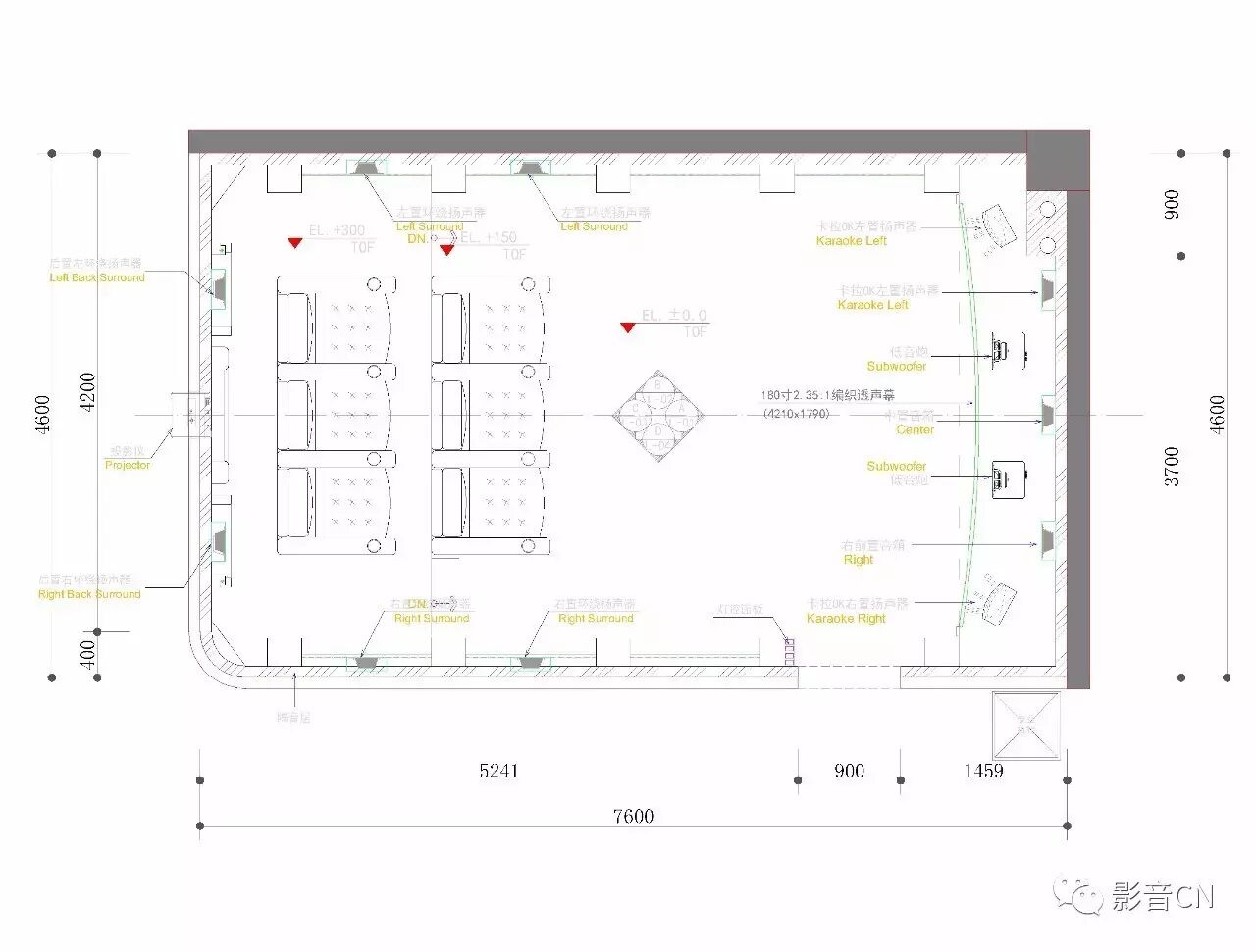
视听室空间信息:视听室35平方米(7.6m×4.6m×3.2m)二层展厅

用户需求的基本描述:时间的推移,和消费人群的年轻化。美洛笛克一直在分析究研人们对视听效果的追求和审美的改变,后期人们对现代和主题风格的期待,经过设计团队和业务团队的探讨。最后订案以太空仓主题的科幻风格做为主展厅。

周边布局概括性描述:展厅设在建材圈的红星美凯龙商业街中

设计公司名称:福建美洛笛克电子科技有限公司

 

所用器材列表


信号源设备:

OPPO BDP-203

海美迪 H10IV

视频设备:

SONY VPL-VW528ES

哈客尼斯微孔幕布

音响设备:

Monitor Audio金系列音箱

ELAC SUB2070重低音炮

天龙AVR-X7200WA

美国ATI后级



娱乐设备:

JBL KP系统

智能系统:

control4

其它设备:

德国敏力线

XTZ分析仪

SONY专业调试软件

 

声学光学处理及特别设计


展厅的要求是隔音减震、处理方面的材料有减震器、隔音毡、隔音棉、隔音板构成的空腔。声学处理应用的ST的声学模块主要特点木工上了10000个镙丝。为了实现更好的图像整体空间的都为深色装饰。

 

系统调试与设计者心得


运用了最新和最有现代风格的材料。好多都是来源于工厂订制。共设计6个坐位。低音炮有ELAC专业提供的调试软件,另外control4的控制系统简单方便。


 

整体风格与效果


外观以一个太空仓的风格展现,简单大方。Monitor Audio 金系列声音平滑有力。特别介绍一下德国的意力低音炮强劲有力,最重要的是低音很干净。SONY 4K的画面细腻色彩饱满。



订阅影音中国全新手机报(微信号:hdavcnn),登录www.hdavchina.com影音中国网,掌握更多影音资讯

↓↓↓ 点击"阅读原文" 【查看更多信息】

福禄克网络